Vom Familienhaus zum Mehrgenerationenort

Ein Enkel zieht zu seinen Großeltern – ein Satz, der vertraut klingt und in diesem Fall die Grundlage für ein spannendes Umbauprojekt, das neue Perspektiven eröffnete und dabei Generationen miteinander verband.

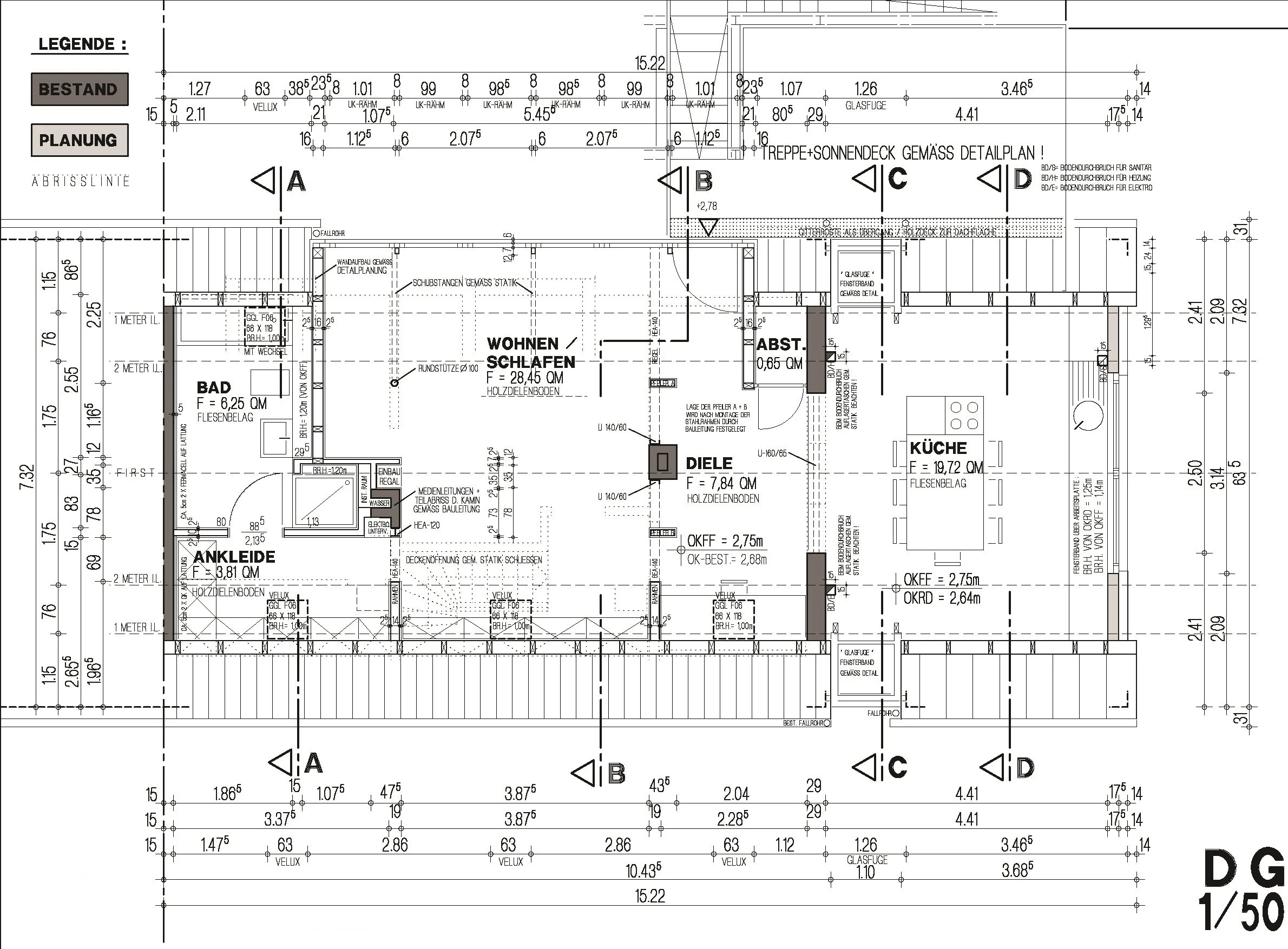
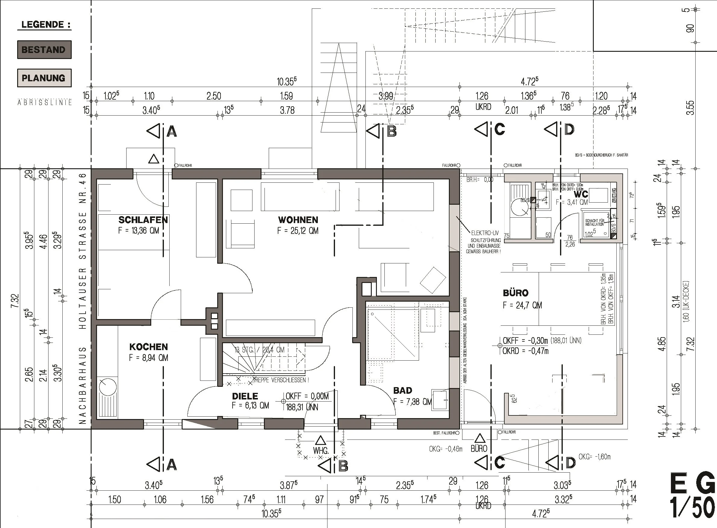
Das bestehende Haus wurde so erweitert, dass nun drei eigenständige Wohneinheiten zur Verfügung stehen – flexibel nutzbar, individuell kombinierbar und bereit für wechselnde Lebensphasen.
Ein Gebäude, dass mit seinen Bewohnern mitwachsen kann – offen für Veränderungen, voller Möglichkeiten.

Eine durchlaufende “Glasfuge” verbindet den Anbau mit dem Bestand und belichtet die Räume gleichzeitig auf spannende Art.

Zurück
Zurück

Aufstocken und Anbauen

Weiter
Weiter

Varianten